Modern building strategies help create an exceptional living environment and meaningful, measurable sustainability.
The Niantic Net Zero House is a single-family home near the sailing mecca of Block Island Sound in Connecticut. Passive House design strategies create an exceptional living environment for this home, which is embraced in granite cliffs with breathtaking views of Niantic Bay.
For a Philadelphia couple, finding a location for their second home and choosing an architect to fulfill their vision was a years-long journey. The husband, a renowned designer and builder of luxury catamarans, and his wife, a prominent communications executive, thoroughly investigated communities, natural environments, and properties that would enable the indoor/outdoor lifestyle they desired. This included convenient access to their own catamaran and a robust sailing community they would enjoy into retirement.
After years of searching along the Eastern Seaboard, they discovered an undeveloped cliffside site facing Niantic Bay, adjacent to a vibrant sailing community. This location also encouraged the incorporation of a living space that would entice their adult son to visit regularly from New York City.
Passionate and knowledgeable about thoughtful design, the couple sought modern building strategies to deliver an exceptional living environment, beautiful aesthetics, and meaningful, measurable sustainability. After painstaking research into architects at the vanguard of sustainable modern design, a detailed design brief went to Milford, Pennsylvania-based Richard Pedranti Architect (RPA) on a Sunday. Enthused by the details, the two entities were on the phone that afternoon. The firm soon visited the site to document the project location’s assets.
Done by Design
The selected contractor, Bluewater Millwork & Construction in Essex, Connecticut, was headquartered just 30 minutes from the site and was distinguished by building the first Passive House in the state of Connecticut. An avid sailor himself, the principal grew up in the area to become a respected builder, working with local subcontractors, all continuing the proud tradition of New England craftsmanship.
The small waterside community now enjoys an exquisite modern home nestled naturally into the cliffside and glowing warmly above the New England marina, which is also home to the couple’s own catamaran—a new addition to the area’s distinguished sailing tradition.
More importantly, the Passive House strategies combined with photovoltaic solar collection make this home an energy-neutral inspiration to the community and those who consider how to conceive their own home design.
This project is intended to serve as a second home for the owners of a luxury catamaran design/build firm. They searched for years to find a modern home that was one with its natural environment while enjoying access to and expansive views of the water, and which could support their vision of a modern home.
Discerning of design details and materials selection, these considerations were paramount—as was the goal of sustainability. The clients expect to employ leading-edge building design and construction strategies to minimize the environmental impact of their new home. Aesthetically, the clients envisioned the design would integrate “two barn shapes.”
Program Requirements for a Perfect House
Given the long search to find the perfect property, the client challenged the team to complete the project in 18 months. That challenge included meeting several design requirements.
Maximize the impact of the views of Niantic Bay from indoor and outdoor areas.
Create a separate living space for visits from the adult son of the owners.
Mitigate design and construction challenges created by the site’s granite cliffside.
Engineer to meet stringent approval requirements of the area, particularly for stormwater management.
Work through the New England winter to meet occupancy deadline.
Leverage modern building strategies for a maximally sustainable home.
Passive House Distinguishing Aspects
Passive House design strategies, combined with onsite renewable roof mounted solar panels, help achieve the clients’ sustainability objectives and the home’s net zero status. A prefabricated envelope and steel framing help meet the client’s aggressive schedule.
As one of the most experienced U.S. architecture firms in prefabricated Passive Houses, RPA advised on general contractor and prefabricated vendor selection.
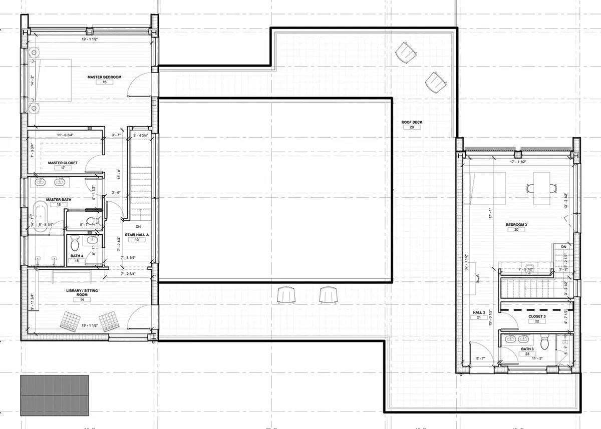
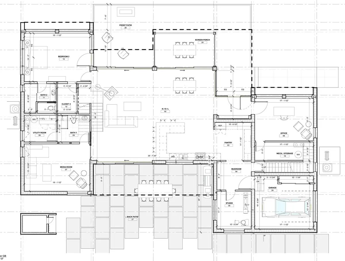
Glass walls across the eastern side of the home ensure continual views of the bay, retracting to connect seamlessly to the outdoor space. External shades provide an effective strategy to regulate sun exposure and control passive solar gain.
RPA envisioned the two barn shapes into zoning which defines the master zone and a separated guest zone connected by a public zone for gathering. The middle zone also serves to connect the home with the natural flow of granite cliff above, and the waters of Niantic Bay below.
The Niantic Net Zero home will include onsite renewable roof mounted solar panels, which will help it achieve net zero status.
Glass walls with external shades across the eastern side of the home provide an effective strategy to regulate sun exposure and control passive solar gain.
Richard Pedranti is founder and principal of Richard Pedranti Architect (RPA), a premier architecture firm pioneering energy-efficient architecture for modern living.
Passively Perfect
Modern building strategies help create an exceptional living environment and meaningful, measurable sustainability.
The Niantic Net Zero House is a single-family home near the sailing mecca of Block Island Sound in Connecticut. Passive House design strategies create an exceptional living environment for this home, which is embraced in granite cliffs with breathtaking views of Niantic Bay.
For a Philadelphia couple, finding a location for their second home and choosing an architect to fulfill their vision was a years-long journey. The husband, a renowned designer and builder of luxury catamarans, and his wife, a prominent communications executive, thoroughly investigated communities, natural environments, and properties that would enable the indoor/outdoor lifestyle they desired. This included convenient access to their own catamaran and a robust sailing community they would enjoy into retirement.
After years of searching along the Eastern Seaboard, they discovered an undeveloped cliffside site facing Niantic Bay, adjacent to a vibrant sailing community. This location also encouraged the incorporation of a living space that would entice their adult son to visit regularly from New York City.
Passionate and knowledgeable about thoughtful design, the couple sought modern building strategies to deliver an exceptional living environment, beautiful aesthetics, and meaningful, measurable sustainability. After painstaking research into architects at the vanguard of sustainable modern design, a detailed design brief went to Milford, Pennsylvania-based Richard Pedranti Architect (RPA) on a Sunday. Enthused by the details, the two entities were on the phone that afternoon. The firm soon visited the site to document the project location’s assets.
Done by Design
The selected contractor, Bluewater Millwork & Construction in Essex, Connecticut, was headquartered just 30 minutes from the site and was distinguished by building the first Passive House in the state of Connecticut. An avid sailor himself, the principal grew up in the area to become a respected builder, working with local subcontractors, all continuing the proud tradition of New England craftsmanship.
The small waterside community now enjoys an exquisite modern home nestled naturally into the cliffside and glowing warmly above the New England marina, which is also home to the couple’s own catamaran—a new addition to the area’s distinguished sailing tradition.
More importantly, the Passive House strategies combined with photovoltaic solar collection make this home an energy-neutral inspiration to the community and those who consider how to conceive their own home design.
This project is intended to serve as a second home for the owners of a luxury catamaran design/build firm. They searched for years to find a modern home that was one with its natural environment while enjoying access to and expansive views of the water, and which could support their vision of a modern home.
Discerning of design details and materials selection, these considerations were paramount—as was the goal of sustainability. The clients expect to employ leading-edge building design and construction strategies to minimize the environmental impact of their new home. Aesthetically, the clients envisioned the design would integrate “two barn shapes.”
Program Requirements for a Perfect House
Given the long search to find the perfect property, the client challenged the team to complete the project in 18 months. That challenge included meeting several design requirements.
Passive House Distinguishing Aspects
Passive House design strategies, combined with onsite renewable roof mounted solar panels, help achieve the clients’ sustainability objectives and the home’s net zero status. A prefabricated envelope and steel framing help meet the client’s aggressive schedule.
As one of the most experienced U.S. architecture firms in prefabricated Passive Houses, RPA advised on general contractor and prefabricated vendor selection.
Glass walls across the eastern side of the home ensure continual views of the bay, retracting to connect seamlessly to the outdoor space. External shades provide an effective strategy to regulate sun exposure and control passive solar gain.
RPA envisioned the two barn shapes into zoning which defines the master zone and a separated guest zone connected by a public zone for gathering. The middle zone also serves to connect the home with the natural flow of granite cliff above, and the waters of Niantic Bay below.
The Niantic Net Zero home will include onsite renewable roof mounted solar panels, which will help it achieve net zero status.
Glass walls with external shades across the eastern side of the home provide an effective strategy to regulate sun exposure and control passive solar gain.
By Richard Pedranti, Guest Columnist
Richard Pedranti is founder and principal of Richard Pedranti Architect (RPA), a premier architecture firm pioneering energy-efficient architecture for modern living.Also Read