Enterprise Builders’ newest development is eco-responsible in more ways than one.
As rents and energy costs increase, so too does the demand for sustainable, affordable housing. After all, environmentally friendly housing solutions tend to also be very cost-effective, and when money is tight, that is very welcome indeed.
Surprisingly, many affordable housing developments only accomplish the bare minimum in regards to eco-friendly practices. Eagleville Green has taken the opposite approach and risen to the top as a different kind of affordable housing community—one that uses energy- and cost-conscious practices from its construction on up to maximize sustainability and affordability, without sacrificing the comfort of the consumer.
That combination of economic and environmental persuasion has led to the project being named Grand Winner of Green Builder’s 2026 Green Home of the Year (GHOTY) competition. Eagleville Green is also the winner of the Mainstream Green category.
Low Cost, High Quality
Eagleville Green is in Storrs, Connecticut, a village within the town of Mansfield that is primarily known for being the location of the University of Connecticut.
The community’s proximity to the state’s flagship college was no accident—the university can be cited as the greatest source of Mansfield’s demand for affordable housing. To that end, the initiative has so far provided 41 homes and built substantial support for additional development in the area.
What sets Eagleville Green apart, however, are the methods and practices present in those homes’ construction. Each one adheres to Passive House U.S. standards, thanks to its fully insulating envelope of Gutex therma-fiber, HeatLok spray foam, Knauf EcoBattin exterior 2-by-6 studs, and 10-mil poly vapor retarder. Thermal modeling has been done at every unique junction and connection, ensuring consistent temperatures and reducing the risk of condensation.
Every appliance inside is fully electric, and combustion appliances were even disallowed for temporary heating during construction. The community is so energy efficient that it contributes to the energy needs of Mansfield, thanks to the 323,116 kilowatts of power produced by the rooftop solar panels on six of the seven buildings going directly back into the local grid.
From the Judges “I love it! Efficient homes for the rest of us. This is my idea of a real green, sustainable home. This needs to be recognized, publicized and held up as an example of what housing should look like now and in the future.”
That energy will keep flowing for a long time, since Eagleville Green was designed with longevity in mind. Frustrated with the short lifespans of other temporary housing developments in the area, developer Kathy Dorgan was determined to make a community that broke the mold. “Of great importance to the team was constructing structures that are built to last using high quality materials, tight construction, and sound detailing,” Dorgan explains.
She cites the recent demolition of a development in Norwalk, Conn., that had only been 64 years of age. Instead of constructing another of that type of property, Dorgan drew inspiration from the historic Fuggerei in Augsburg, Germany, in the hopes of creating a community that, like its inspiration, might last for 500 years.
Click to view a larger image
One with the Environment
Indeed, “community” was a central theme of the project from the moment of its conception. Making use of funds secured from the Connecticut Departments of Housing and Economic and Community Development, the town of Mansfield, the public utility Eversource, the Mansfield Housing Authority, the Housing Ministries of New England, and the architects’ own pockets, the project team was committed to making a socially sustainable development as well as an economically and environmentally stable one.
To meet local housing needs, a community-based nonprofit was created, and shortly partnered with the local housing authority, while community planning was accomplished via participatory consultation and outreach to soon-to-be neighbors. Dorgan recalls being amazed at the level of community support Eagleville Green received and considers it the biggest surprise of the project. “Many neighbors came to public hearings to speak for it,” she says. “There was not any community opposition.”
Still, Eagleville Green was not without its difficulties, especially when it came to realizing ambitious sustainability goals while development proceeded during the COVID pandemic.
For team member Rebecca Fields, meeting the standards initially set by the initiative proved to be one of the biggest challenges to the project’s success. “The biggest lesson was just how tight the envelope had to be to pass the Passive House door blower test,” Fields recalls. “It took multiple times, and the subcontractors had to go back and review/correct their work to get the seal required to pass.”
Other hurdles included damage to previously installed work that had to be redone, frequent and costly product substitutions due to delays caused by COVID, and communication issues.
When all was said and done, however, Eagleville Green truly speaks for itself. Going beyond simply being cost-conscious and environmentally friendly, the development is comfortable and aesthetically pleasing. There is a high degree of natural light, wide walkways, and clear dedication to the preservation of the surrounding woods and wetlands in the form of a central stormwater basin and native plantings throughout the community.
The insulated interiors have another surprising benefit for a development in the heart of a college town: noise reduction. “It was very surprising to discover just how quiet it was in the unit where we held some of the construction meetings during the end of the project,” Fields says. “It was still a construction site, and the project is located on a busy road, and yet it was very quiet inside the unit.”
Overall, Eagleville Green has proven a success for its builders, community managers, and residents. But one GHOTY judge, Modern Design+Construction CEO Bill Roth, feels the project does more than just provide affordable housing. “Everyone should be aware of these homes,” Roth says. “The claim that green building is too expensive can be shown to be a bit of a fallacy when you see these homes for folks with below-mean income, which perform above and beyond what passes for acceptable in production homes these days.”
In an example of helping to control carbon emissions, electric plug-in parking spaces are available to residents who own electric or hybrid vehicles. CREDIT: Dorgan Architecture & Planning
Appliances within each unit are all-electric, while hardwood oak flooring helps sequester indoor carbon emissions, both of which help keep air clean. CREDIT: Dorgan Architecture & Planning.
Designed for near-zero energy consumption through high-performance building envelopes, efficient HVAC, and heat recovery ventilation, Eagleville Green reduced its HERS Index rating from 40 to less than zero. It also achieved Phius ZERO 2021 certification, a high standard for passive, energy-efficient buildings. CREDIT: Dorgan Architecture & Planning.
Fiber cement siding— material made from sand, cement, and cellulose fibers—provides a durable, popular exterior building material that is known for resisting pests, rot, fire, and impact. CREDIT: Courtesy of MNHDC
Eagleville Green’s photovoltaic-claimed power is integrated directly into the buildings for onsite generation, unlike large community solar farms that produce power offsite for subscribers. CREDIT: Courtesy of MNHDC
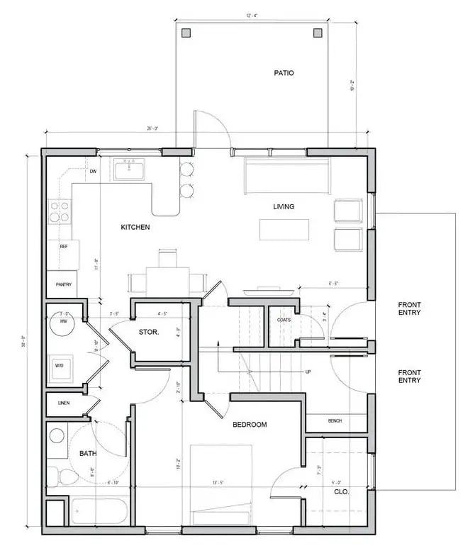
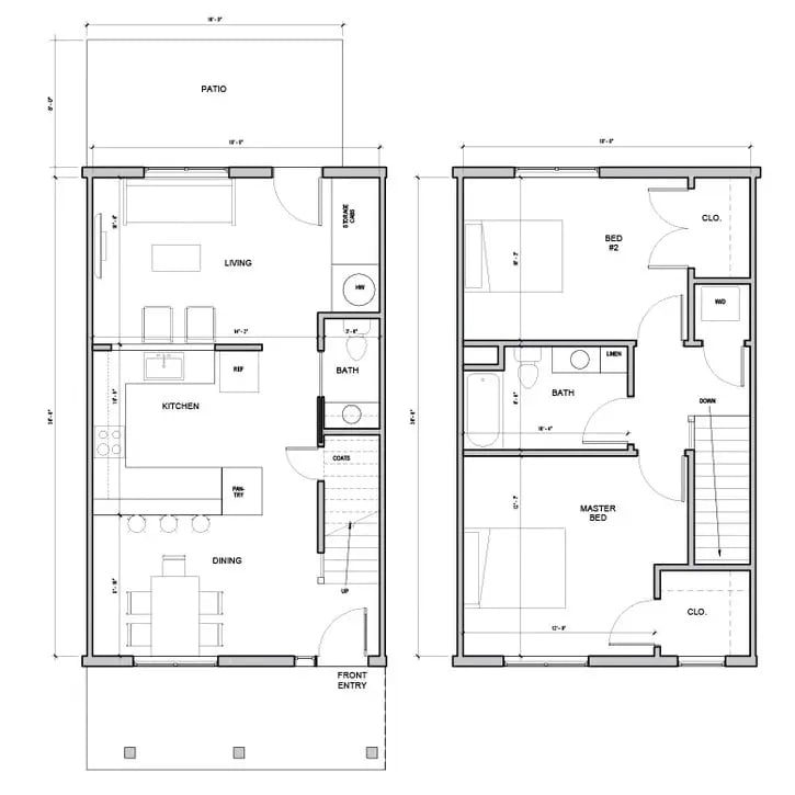
Eagleville Green’s apartments are small—a typical one-bedroom, one-story unit is roughly 700 square feet, while a two-bedroom, two-story model is approximately 500 square feet per floor—but the design allows for easier heating, cooling and indoor lighting.
Key Components
Appliances: Frigidaire refrigerator; GE clothes washer/dryer (heat pump dryer); GE dishwasher; GE range; GE range hood (recirculating ERV exhaust from kitchen area) Building envelope: Gutex therma-fiber batts (exterior continuous insulation); Owens Corning blown-in attic insulation; Intello Plus vapor retarder (attic floor); HeatLok spray foam; Knauf EcoBattin exterior 2-by-6 studs; Pro Clima Solitex Adhero air and vapor retarder; HardiePlank exterior siding Cabinets, shelves, millwork: Cabinets–Birch/HDF; Closet shelving–melamine; Interior trim–flat stock Caulks and sealants: ECOSEAL; DAP No Warp Foam Sealant Countertops: Bathroom sink vanities–cultured marble; kitchen counters–bala white granite Decks: MoistureShield Elevate: Elevate Alpine Gray; composite decking; vinyl railings Doors and hardware: Exterior-Tyrol PH+ Side Hinged Swing Doors by Alpen; Interior–Hollow Core 2 Panel Painted Doors Electrical: Eaton panel and breakers Exterior finishes: Hardie Plank exterior siding; color varies from building to building Fire protection: Automatic sprinkler system (NFPA 13R) Flooring: Marmoleum–Granada (bathrooms, laundry, entries); wood flooring—solid hardwood oak, natural 2.25 inches (Bruce-Waltham) Home controls: Fujitsu Wi-Fi thermostat HVAC/ducts: Fujitsu heat pumps Insulation: See Building envelope Landscaping: Native plants and trees; Acer Rubrum October Glory, Aronia Low Space Mound #3, Azala Delaware Valley White #3, Azalea Lemondrop #3, Clethra #3, Cornus Racemosa-Gray Dogwood, Llex Glabra Shamrock-Inkberry, Juniper Virginia Eastern Red Cedar, Myrica Pennsylvania Northern Bayberry #3, Panicum Virgtum-Northwind Switchgrass #1, Panicum Virgtum-Ruby Ribbons Switchgrass, Quercus Alba White Oak 2.5-3 inch, Rudbeckia Goldstrum–Black Eyed Susan #1 Lighting: Varies; all LED lighting (majority by SunPark) Paints and stains: Benjamin Moore, all zero-VOC Plumbing/plumbing fixtures: Symmons shower heads, lav faucets, kitchen faucets; Kohler toilets; Kohler bathroom sinks; all meet EPA criteria (WaterSense label) Renewable energy systems (solar, wind, etc.): PV on all roofs (except one building which is roughed for future solar [Purepoint Energy]); Q.PEAK DUO XL-G.10.3 (by Q Cells, 485 W); solar edge inverter (SE10000H-US) and optimizers (S500B) Roof: Fiberglass roofing shingles; 0.625-inch exterior grade sheathing; 2-by-4 engineered trusses; blown in insulation (see Building envelope) Telecommunication: Auto-dialer system; dialer panel in each building for monitoring the sprinkler systems Ventilation: Zehnder ERVs Water heating: Sanden Eco2 heat pump Windows, skylights, patio doors: Alpen Tyrol (triple pane)
Alan Naditz is managing editor of Green Builder Magazine. He has covered numerous industries in his extensive career, including residential and commercial construction, small and corporate business, real estate and sustainability.
Naturally Affordable
Enterprise Builders’ newest development is eco-responsible in more ways than one.
As rents and energy costs increase, so too does the demand for sustainable, affordable housing. After all, environmentally friendly housing solutions tend to also be very cost-effective, and when money is tight, that is very welcome indeed.
Surprisingly, many affordable housing developments only accomplish the bare minimum in regards to eco-friendly practices. Eagleville Green has taken the opposite approach and risen to the top as a different kind of affordable housing community—one that uses energy- and cost-conscious practices from its construction on up to maximize sustainability and affordability, without sacrificing the comfort of the consumer.
Project Stats
NAME: Eagleville Green, Mansfield, Connecticut
BUILDER: Enterprise Builders
ARCHITECT: Shadler Selnau Associates, P.C. DEVELOPER: Dorgan Architecture & Planning
Photographer: Wayne Czarnecki, Enterprise Builders; Kathy Dorgan, Dorgan Architecture & Planning
That combination of economic and environmental persuasion has led to the project being named Grand Winner of Green Builder’s 2026 Green Home of the Year (GHOTY) competition. Eagleville Green is also the winner of the Mainstream Green category.
Low Cost, High Quality
Eagleville Green is in Storrs, Connecticut, a village within the town of Mansfield that is primarily known for being the location of the University of Connecticut.
The community’s proximity to the state’s flagship college was no accident—the university can be cited as the greatest source of Mansfield’s demand for affordable housing. To that end, the initiative has so far provided 41 homes and built substantial support for additional development in the area.
What sets Eagleville Green apart, however, are the methods and practices present in those homes’ construction. Each one adheres to Passive House U.S. standards, thanks to its fully insulating envelope of Gutex therma-fiber, HeatLok spray foam, Knauf EcoBattin exterior 2-by-6 studs, and 10-mil poly vapor retarder. Thermal modeling has been done at every unique junction and connection, ensuring consistent temperatures and reducing the risk of condensation.
Every appliance inside is fully electric, and combustion appliances were even disallowed for temporary heating during construction. The community is so energy efficient that it contributes to the energy needs of Mansfield, thanks to the 323,116 kilowatts of power produced by the rooftop solar panels on six of the seven buildings going directly back into the local grid.
From the Judges “I love it! Efficient homes for the rest of us. This is my idea of a real green, sustainable home. This needs to be recognized, publicized and held up as an example of what housing should look like now and in the future.”
That energy will keep flowing for a long time, since Eagleville Green was designed with longevity in mind. Frustrated with the short lifespans of other temporary housing developments in the area, developer Kathy Dorgan was determined to make a community that broke the mold. “Of great importance to the team was constructing structures that are built to last using high quality materials, tight construction, and sound detailing,” Dorgan explains.
She cites the recent demolition of a development in Norwalk, Conn., that had only been 64 years of age. Instead of constructing another of that type of property, Dorgan drew inspiration from the historic Fuggerei in Augsburg, Germany, in the hopes of creating a community that, like its inspiration, might last for 500 years.
Click to view a larger image
One with the Environment
Indeed, “community” was a central theme of the project from the moment of its conception. Making use of funds secured from the Connecticut Departments of Housing and Economic and Community Development, the town of Mansfield, the public utility Eversource, the Mansfield Housing Authority, the Housing Ministries of New England, and the architects’ own pockets, the project team was committed to making a socially sustainable development as well as an economically and environmentally stable one.
To meet local housing needs, a community-based nonprofit was created, and shortly partnered with the local housing authority, while community planning was accomplished via participatory consultation and outreach to soon-to-be neighbors. Dorgan recalls being amazed at the level of community support Eagleville Green received and considers it the biggest surprise of the project. “Many neighbors came to public hearings to speak for it,” she says. “There was not any community opposition.”
Still, Eagleville Green was not without its difficulties, especially when it came to realizing ambitious sustainability goals while development proceeded during the COVID pandemic.
For team member Rebecca Fields, meeting the standards initially set by the initiative proved to be one of the biggest challenges to the project’s success. “The biggest lesson was just how tight the envelope had to be to pass the Passive House door blower test,” Fields recalls. “It took multiple times, and the subcontractors had to go back and review/correct their work to get the seal required to pass.”
Other hurdles included damage to previously installed work that had to be redone, frequent and costly product substitutions due to delays caused by COVID, and communication issues.
When all was said and done, however, Eagleville Green truly speaks for itself. Going beyond simply being cost-conscious and environmentally friendly, the development is comfortable and aesthetically pleasing. There is a high degree of natural light, wide walkways, and clear dedication to the preservation of the surrounding woods and wetlands in the form of a central stormwater basin and native plantings throughout the community.
The insulated interiors have another surprising benefit for a development in the heart of a college town: noise reduction. “It was very surprising to discover just how quiet it was in the unit where we held some of the construction meetings during the end of the project,” Fields says. “It was still a construction site, and the project is located on a busy road, and yet it was very quiet inside the unit.”
Overall, Eagleville Green has proven a success for its builders, community managers, and residents. But one GHOTY judge, Modern Design+Construction CEO Bill Roth, feels the project does more than just provide affordable housing.
“Everyone should be aware of these homes,” Roth says. “The claim that green building is too expensive can be shown to be a bit of a fallacy when you see these homes for folks with below-mean income, which perform above and beyond what passes for acceptable in production homes these days.”
In an example of helping to control carbon emissions, electric plug-in parking spaces are available to residents who own electric or hybrid vehicles.
CREDIT: Dorgan Architecture & Planning
Appliances within each unit are all-electric, while hardwood oak flooring helps sequester indoor carbon emissions, both of which help keep air clean. CREDIT: Dorgan Architecture & Planning.
Designed for near-zero energy consumption through high-performance building envelopes, efficient HVAC, and heat recovery ventilation, Eagleville Green reduced its HERS Index rating from 40 to less than zero. It also achieved Phius ZERO 2021 certification, a high standard for passive, energy-efficient buildings. CREDIT: Dorgan Architecture & Planning.
Fiber cement siding— material made from sand, cement, and cellulose fibers—provides a durable, popular exterior building material that is known for resisting pests, rot, fire, and impact. CREDIT: Courtesy of MNHDC
Eagleville Green’s photovoltaic-claimed power is integrated directly into the buildings for onsite generation, unlike large community solar farms that produce power offsite for subscribers. CREDIT: Courtesy of MNHDC
Eagleville Green’s apartments are small—a typical one-bedroom,
one-story unit is roughly 700 square feet, while a two-bedroom, two-story model is approximately 500 square feet per floor—but the design allows for easier heating, cooling and indoor lighting.
Key Components
Appliances: Frigidaire refrigerator; GE clothes washer/dryer (heat pump dryer); GE dishwasher; GE range; GE range hood (recirculating ERV exhaust from kitchen area)
Building envelope: Gutex therma-fiber batts (exterior continuous insulation); Owens Corning blown-in attic insulation; Intello Plus vapor retarder (attic floor); HeatLok spray foam; Knauf EcoBattin exterior 2-by-6 studs; Pro Clima Solitex Adhero air and vapor retarder; HardiePlank exterior siding
Cabinets, shelves, millwork: Cabinets–Birch/HDF; Closet shelving–melamine; Interior trim–flat stock
Caulks and sealants: ECOSEAL; DAP No Warp Foam Sealant
Countertops: Bathroom sink vanities–cultured marble; kitchen counters–bala white granite
Decks: MoistureShield Elevate: Elevate Alpine Gray; composite decking; vinyl railings
Doors and hardware: Exterior-Tyrol PH+ Side Hinged Swing Doors by Alpen; Interior–Hollow Core 2 Panel Painted Doors
Electrical: Eaton panel and breakers
Exterior finishes: Hardie Plank exterior siding; color varies from building to building
Fire protection: Automatic sprinkler system (NFPA 13R)
Flooring: Marmoleum–Granada (bathrooms, laundry, entries); wood flooring—solid hardwood oak, natural 2.25 inches (Bruce-Waltham)
Home controls: Fujitsu Wi-Fi thermostat
HVAC/ducts: Fujitsu heat pumps
Insulation: See Building envelope
Landscaping: Native plants and trees; Acer Rubrum October Glory, Aronia Low Space Mound #3, Azala Delaware Valley White #3, Azalea Lemondrop #3, Clethra #3, Cornus Racemosa-Gray Dogwood, Llex Glabra Shamrock-Inkberry, Juniper Virginia Eastern Red Cedar, Myrica Pennsylvania Northern Bayberry #3, Panicum Virgtum-Northwind Switchgrass #1, Panicum Virgtum-Ruby Ribbons Switchgrass, Quercus Alba White Oak 2.5-3 inch, Rudbeckia Goldstrum–Black Eyed Susan #1
Lighting: Varies; all LED lighting (majority by SunPark)
Paints and stains: Benjamin Moore, all zero-VOC
Plumbing/plumbing fixtures: Symmons shower heads, lav faucets, kitchen faucets; Kohler toilets; Kohler bathroom sinks; all meet EPA criteria (WaterSense label)
Renewable energy systems (solar, wind, etc.): PV on all roofs (except one building which is roughed for future solar [Purepoint Energy]); Q.PEAK DUO XL-G.10.3 (by Q Cells, 485 W); solar edge inverter (SE10000H-US) and optimizers (S500B)
Roof: Fiberglass roofing shingles; 0.625-inch exterior grade sheathing; 2-by-4 engineered trusses; blown in insulation (see Building envelope)
Telecommunication: Auto-dialer system; dialer panel in each building for monitoring the sprinkler systems
Ventilation: Zehnder ERVs
Water heating: Sanden Eco2 heat pump
Windows, skylights, patio doors: Alpen Tyrol (triple pane)
By Alan Naditz
Alan Naditz is managing editor of Green Builder Magazine. He has covered numerous industries in his extensive career, including residential and commercial construction, small and corporate business, real estate and sustainability.Also Read